KYB80-35-25防爆油罐車自吸泵 |
||||||||||||||||||||||||||||||||||||||||||||||||||||||||||||||||||||||||||||||||||||||||||||||||||||||||||||||||||||||||||||||||||||||||||||||||||||||||||||||||||||||||||||||||||||||||
|
|
||||||||||||||||||||||||||||||||||||||||||||||||||||||||||||||||||||||||||||||||||||||||||||||||||||||||||||||||||||||||||||||||||||||||||||||||||||||||||||||||||||||||||||||||||||||||
![]()
產品介紹 產品介紹: KYB80-35-25防爆油罐車自吸泵,用于輸送汽油,柴油,煤油等輕質油品。該泵不僅可用于油庫中卸油,抽底油,掃倉,加油,還可以用于機動加油車,油罐車。 KYB80-35-25防爆油罐車自吸泵自帶溢流閥,以帶葉片的轉子驅動液體傳輸。泵體材質采用鑄鐵,滑片材質采用全銅,經久耐用。根據環境和客戶要求,動力配置可選擇電機,柴油機或者汽油機。 主要用途: 1、抽吸和輸送輕油、化工、煤油和運動粘度在200厘斯以下的各種潤滑油; 2、配用銅葉輪可輸送內燃點低液體、汽油、苯、甲醇等,主要用于油庫、加油站、火車站、汽車隊、油船等的抽吸、倒灌、裝車、掃艙等,也可用作機動加油車、油罐車用泵等; 3、不銹鋼滑板泵還可輸送飲料以及任意濃度的酸、堿液,氧化劑及其他腐蝕介質。 性能參數:
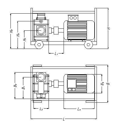
外型尺寸 ![]()
因產品生產批次、型號不同,產品圖片及安裝尺寸僅供參考,詳情可聯系我們的銷售人員了解更多KYB80-35-25防爆油罐車自吸泵相關信息!
|
||||||||||||||||||||||||||||||||||||||||||||||||||||||||||||||||||||||||||||||||||||||||||||||||||||||||||||||||||||||||||||||||||||||||||||||||||||||||||||||||||||||||||||||||||||||||




















